Your privacy is important to us. This website uses cookies to enhance user experience and to analyze performance and traffic on our website. By using this website, you acknowledge the real-time collection, storage, use, and disclosure of information on your device or provided by you (such as mouse movements and clicks). We may disclose such information about your use of our website with our social media, advertising and analytics partners. Visit our Privacy Policy and California Privacy Disclosure for more information on such sharing.

Log In

Our Brands

Helpful Tools

Search

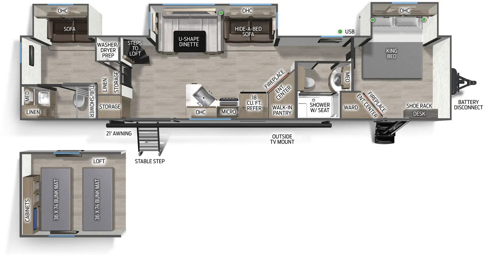
Explore 2026 Timberwolf Black Label Destination Trailers 39DCBL Floorplan

Hitch Weight
1,470 lb.
GVWR
13,470 lb.
UVW
12,049 lb.
CCC
1,421 lb.
Exterior Length
44' 9"
Exterior Height
13' 6"
Exterior Width
96"
Fresh Water
40 gal.
Gray Water
80 gal.
Black Water
70 gal.
Awning Size
21'